• 线圈骨架采用优质铝合金制作、线圈内侧采用镂空结构、有利于线圈的散热
• 线圈采用优质耐180℃高温定制线绕制
• 线圈整体经过电磁仿真软件优化、最大化提高电流利用效率、以及轻量化线圈、减少热量产生
• 四个高精度探针座、分辨率20μm
• 四个低频探针、频率高达1GHz
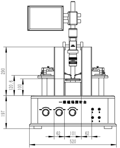
• CCD数字显微镜、放大倍数达到300倍
• 9寸CCD显示器
• 三维无磁样品台、实现水平二维移动和样品台自身旋转
• 前面板同轴测量接口、方便连接测量引线
• 整体无磁材料制作
• 可定制样品台
• 供电接口采用优质航空接头、方便易用
• 表面进行氧化、喷塑等处理
• 可长时间工作、不需要值守